Đặc điểm nổi bật của nắp rửa bồn cầu treo tường TOTO CW822RA/WH172A/TC393VS/MB176G
Thay đổi lối sống. Đó là điều mà mọi người cảm nhận trong lần đầu trải nghiệm với bồn cầu âm tường TOTO có chất liệu là lớp men sứ chuyên dụng cho các thiết bị vệ sinh nên sản phẩm có độ bền cao trong suốt thời gian dài sử dụng mà không bị bám bẩn, hoen ố, bong tróc. Thiết kế tối giản, sang trọng vừa dễ dàng vệ sinh và làm đẹp thêm không gian phòng tắm thêm đảng cấp.
Bồn cầu treo tường TOTO CW822RA kết hợp cùng nắp bồn cầu đóng êm TC393VS, két nước và khung đỡ âm tường WH172A, Nắp đậy nút nhấn xả nước bằng kính MB176G
Nắp bồn cầu đóng êm TOTO nổi bật với thiết kế sang trọng, có cơ chế đóng nắp từ từ không gây ra tiếng ồn và tránh bể vỡ. Sử dụng vật liệu Kháng Khuẩn nâng cao sức khỏe người sử dụng, tạo không gian sạch đẹp thân thiện môi trường.
BỒN CẦU TREO KÉT NƯỚC ÂM TƯỜNG
Bồn cầu được thiết kế có thùng chứa nước âm bên trong tường và thân cầu được treo lên cách mặt đất rất thuận tiện cho việc vệ sinh.
Thiết kế có khung bao vững chắc đảm bảo chịu lực tốt cho dù có bị giẫm đạp mạnh vẫn không bị xệ, Tạo cho không gian hòng vệ sinh thêm sang trọng hơn và đảm bảo tính thẩm mỹ tuyệt hảo.
MEN CHỐNG BÁM BẨN CEFIONTECT
CEFIONTECT là một lớp men sứ mịn màng được tráng trên toàn bộ bề mặt bàn cầu. Lớp men tráng vô cùng mịn này khiến cho chất thải không thể bám vào bề mặt bàn cầu. Với độ bền cao, CEFIONTECT đại diện cho vẻ đẹp bền bỉ và sạch sẽ.
Các lớp thủy tinh được nung lên cùng với men sứ thông thường tạo thành lớp men CEFIONTECT. Do đó, men sứ CEFIONTECT là một vật liệu cực kỳ bên bỉ.
XẢ XOÁY TORNADO
Hệ thống xả TORNADO không chỉ làm sạch hiệu quả hơn mà còn giảm tiếng ồn bằng cách sử dụng ít nước hơn. Những dòng nước mạnh mẽ kết hợp và xoáy 360 độ, cuốn trôi mọi chất thải bên trong lòng cầu có thiết kế vành kín.
Hệ thống xả TORNADO xả nước từ phía trước, xoáy đều theo mặt trong của bàn cầu với áp lực nước được duy trì ổn định để vệ sinh sạch sẽ mọi khu vực nơi chất thải tích tụ dễ dàng nhất, sau đó rửa sạch toàn bộ lòng cầu. Chất lượng men sứ cao cấp giúp cho thiết kế sáng tạo này có thể đạt hiệu quả tối đa.
THIẾT KẾ VÀNH KÍN
Thiết kế VÀNH KÍN độc đáo không có chỗ cho chất thải và vi khuẩn bám vào. Thiết kế này cũng giúp việc lau chùi nhà vệ sinh trở nên dễ dàng hơn.
Thiết kế vành hộp thông thường dễ xuất hiện vi khuẩn và khó vệ sinh. TOTO cho ra đời mẫu bồn cầu có thiết kế vành kín bên trong không có bất kì khoảng trống nào để vi khuẩn sinh sôi và rất dễ dàng vệ sinh.
TIẾT KIỆM NƯỚC 3L/4.5L
Hệ thống xả nước và tiết kiệm nước hiệu quả cao ECOMAX là thuật ngữ chung chỉ các hệ thống tiết kiệm nước hiệu quả của bồn cầu TOTO, bao gồm công nghệ siêu tiết kiệm nước và công nghệ CEFIONTECT do TOTO phát triển. Với những công nghệ này, TOTO có thể tạo ra những chiếc bồn cầu siêu tiết kiệm nước với lượng nước xả chỉ 4,5L (hoặc ít hơn).
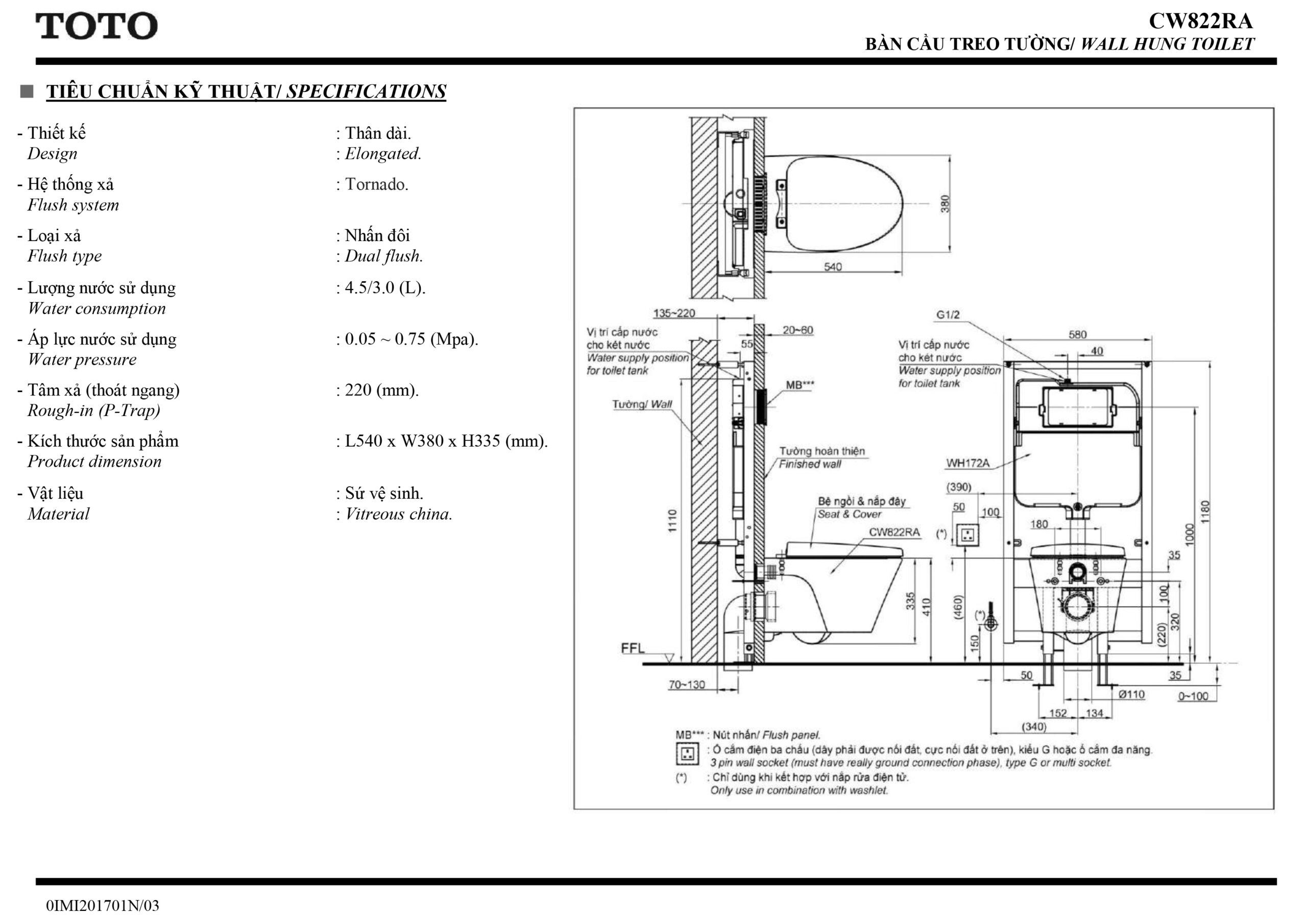
Bản vẽ thông số thiết kế bồn cầu treo tường TOTO CW822RA/WH172A/TC393VS/MB176G







Đánh giá
Clear filtersChưa có đánh giá nào.